帝王國際193平米中式風(fēng)格戶型解析
來源:金舍裝飾
瀏覽:次
更新時間:2021-11-18 09:09:54
項目地址:帝王國際
裝修面積:193平米
裝修風(fēng)格:中式風(fēng)格
帝王國際193平米原始戶型圖
戶型解析
優(yōu)點分析:
1動線較合理,沒有浪費空間
2.公共空間大,儀式感強
3.整體戶型空間方正
4.主臥室有單獨的衣帽間,整體儲物空間較多
缺點
1.客廳沒有陽臺,空間感較差
2.主次臥室空間刀把戶型
3.廚房空間收納相對較小,不能滿足電器的使用
帝王國際193平米墻體拆除圖
帝王國際193平米新建墻體圖

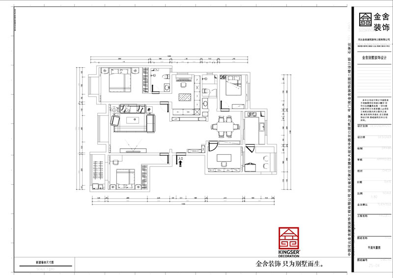
帝王國際193平米平面布置圖
拆改方法:
1.把戶型東北角儲物間劃給廚房使用
2.刀把戶型空間通過吊頂來劃分空間結(jié)構(gòu)
3.通過墻體新建利用平面來收納使用空間